HL型環鏈離心斗式提升機廠家介紹提供圖片
HL型環鏈離心斗式提升機(環鏈提升機)產品概述:
HL型環鏈離心斗式提升機(環鏈提升機)適用于垂直輸送磨琢性較大的粉狀、粒狀、及小塊狀物料,如糧食、煤、水泥、碎礦石等,輸送高度最高40m,其特點為,結構簡單,運行平穩,掏取式裝料,混合式或重力卸料,輪緣采用組合鏈輪,更換方便,鏈輪輪緣經特殊處理壽命長,下部如采用重力自動張緊裝置,能保持恒定的張力,避免打滑或脫鏈,同時在料斗遇阻時,有一定的容讓性能夠有效地保護運動部件,物料溫度不超過250℃。
HL型環鏈離心斗式提升機(環鏈提升機)工作原理:
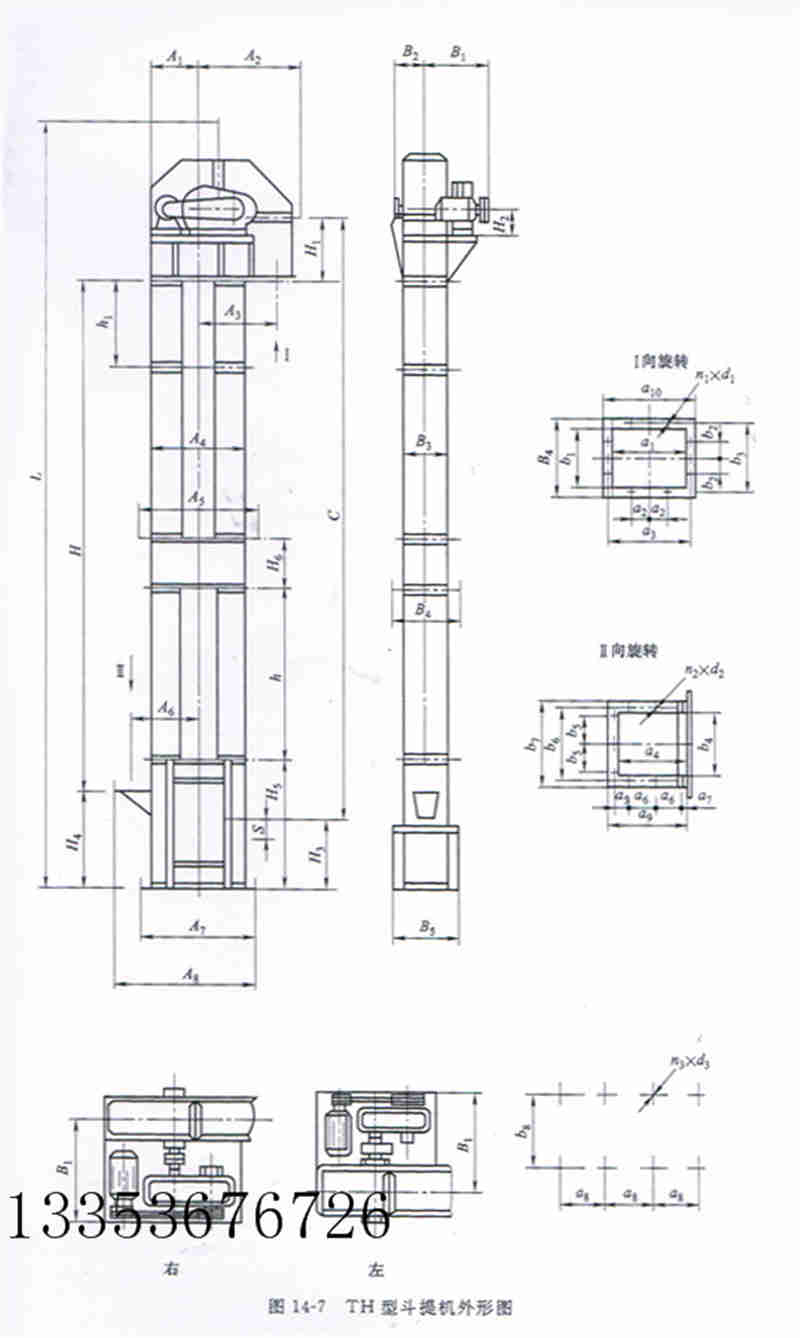
HL型環鏈離心斗式提升機由運動部分(料斗與牽引鏈條)、帶有傳動鏈輪的上部區段、帶有拉緊輪的下部區段、中間機殼、驅動裝置、逆止制動裝置等組成(見下圖)。本提升機的料斗為間斷式布置,利用“掏取法”進行裝載,“離心投料法”卸料。本斗式提升機的牽引機構是兩根環形鏈條.我公司生產的HL型環鏈離心斗式提升機,由運動部分(料斗與牽引鏈條)、帶有傳動鏈輪的上部區段、帶有拉緊輪的下部區段、中間機殼、驅動裝置、逆止制動裝置等組成。本提升機的料斗為間斷式布置,利用“掏取法”進行裝載,“離心投料法”卸料。本斗式提升機的牽引機構是兩根環形鏈條。
HL型環鏈離心斗式提升機(環鏈提升機)主要特點:
1.整機體積小、轉速高、確保快速均勻輸送。
2.運行平穩、輸送效率高。
3.料斗形式多,應優先選用。
4.適應性強、安裝維修方便、壽命長。
HL型環鏈離心斗式提升機廠家介紹提供圖片
機頭展示
箱體展示
機尾展示
提升機廠家提示:請通過正規渠道購買奧創輸送機,以保障您的合法權益!
訂購網址請登錄河南奧創機械有限公司官方網站: m.hzyjkj.com.cn 24小時服務熱線:13353676726


