
疊層篩選機介紹?:
礦漿回收疊層篩選機介紹
疊層篩是使用統一的振動源來驅動多層篩箱一起振動的設備。帶有獨立篩查系統的篩查箱錯開并上下堆疊。篩網的每一層均獨立完成進料和篩分操作。表面上的篩子和篩子分別收集和排放。高頻多層篩是一種吸收國外先進技術開發的高效細粒度物料分級設備。 整機技術引進并消化了國外先進的五層線性振動技術,振動幅度大,節省占地面積。由兩組圓柱電動機的配置產生的線性運動,懸架橡膠彈簧系統懸架在外部支撐框架上,振動力均勻,噪音小,負荷小,功耗低,并且 這是環保的。設備的耐磨部件由陶瓷,Nate橡膠板和聚氨酯等耐磨材料制成,可延長設備的使用壽命并減少設備的維護量。該設備大多采用快速裝配的零件,以實現組裝和更換備用零件的便利,從而便于現場操作。


工作原理:
礦漿回收疊層篩選機工作原理:
疊層的高頻振動細篩由兩個電動振動器驅動,它們的移動方向相反,以驅動篩框沿直線移動。兩個電動振動器在篩框上的合力穿過篩框的重心。因此,屏幕框架上每個點的激勵力。礦石漿液從分礦器的上部或下部進料,由分礦器均勻地分成多個路徑,然后通過礦軟管進入多個進礦器。將礦石漿均勻地撒在篩網的頂部。屏幕表面的物料連續受到高頻和小振幅振動,并在傾斜的屏幕表面連續跳動以分散物料。細粒物料在混合過程中通過篩網,稱為篩下產品。篩網產品大于篩下產品。帶有篩孔的物料在傾斜的篩網表面上連續向前跳躍,最后從篩網中跳出。成為屏幕上的產品。

主要特征:
礦漿回收疊層篩選機主要特征:
1.采用多層篩箱的疊加結構設計,大大增加了振動篩的篩分面積,相當于多臺普通篩分機的工作,大大提高了篩分的效率和產量。
2.采用優質,高開度,抗結塊,耐磨的聚氨酯篩網,并采用專用的分礦器分流和進料礦石,使物料均勻分布在篩網下方。在保證大產量的前提下,減少了因過快的流動速度而造成的漿料對篩子的沖擊,延長了篩子的使用壽命,平均使用壽命超過6個月。
3.配置具有低能耗。 意大利原裝進口振動電機的高效,穩定,可靠的性能。 電機安裝采用美國螺紋防松技術,以確保振動源的可靠性。
4.篩箱內部的所有漿液部分均襯有高耐磨的特殊橡膠層,與箱體表面結合強度高,*脫落,有效避免了篩箱的磨損 由流沙。篩箱外部全部采用聚氨酯噴涂工藝制成,噴涂厚度為2-3mm,大大提高了篩箱的耐磨性和耐腐蝕性。 篩箱板由低合金高強度結構鋼制成。 生產采用數控切割技術。完全避免了篩箱的二次變形,有效地延長了設備的使用壽命。
5.多通道并聯連接,占用空間小。 振動篩的五個篩框為疊加層的形式,相當于將五個篩的面積合并為一個篩,使整個振動篩更加緊湊,增加了生產場地的安裝靈活性 性別。
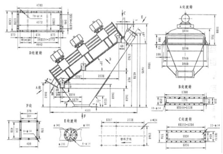
外形示意圖:
礦漿回收疊層篩選機外形示意圖:
礦漿回收疊層篩選機結構組成:
篩網機主要由1.直線振動器,2.上篩箱,3.進料箱,4.固定架,5.下篩籃6,高頻振動系統7,篩上料斗8,和 下部篩網物料收集漏斗9,剪切彈簧等組成。
礦漿回收疊層篩選機優勢
1、篩面振動、篩箱不動。電磁振動器通過傳動機構,直接激振篩面。
2、篩機由減震橡膠彈簧支撐,動載荷小,可隨意擺放安裝,無需特制基礎。
3、功耗小。每個電磁激振器的有功功率僅150瓦,故該篩機為節能產品。
4、由于篩箱不動。容易密封,尤其對干法篩分可實現封閉作業,減少環境污染,故該篩機為環保產品。
5、篩面50HZ高頻振動,也可實行12.5~50HZ變頻振動,或者固定在12.5~50HZ之間的某一頻率。
6、雙振幅,振幅1~3mm,振動強度大,篩面自清洗能力強,不堵孔,篩分脫水效率高,處理能力大
7、自動噴水系統,噴水間隔時間和大小都由電腦集中控制。
8、布置在篩箱外側的多個電磁振動器由計算機集中控制,振幅分段可調,并且具有間斷瞬振功能,隨時清理篩網
9、篩面傾角方便可調,以適應不同性質的物料篩分作業。
10、篩面采用柔性篩網(不銹鋼絲網、高錳鋼絲網、鋼絲繩芯聚氨酯網),縱向張緊安裝。篩面由兩層或者三層組成,下層為粗絲大孔的托網或者為鋼絲繩芯聚氨酯網與激振裝置接觸,上層為復合網(兩層網孔不一樣的篩網粘結在一起)或者單層網。
型號參數表:
礦漿回收疊層篩選機型號參數表:
河南鵬威機械設備有限公司專業生產各種通用設備,振動設備商家
訂購網址請登錄河南鵬威機械有限公司官方網站:m.hzyjkj.com.cn 24小時服務熱線:13353676726